Objektart
Adresse
Objektdaten
Informationen
Ausstattung
Details
Die angebotene Wohnung befindet sich in einem 2003 fertiggestellten kleineren Mehrfamilienhaus in bevorzugter, sonniger Wohnlage. Schulzentrum sowie Altstadt sind von hier aus in wenigen Gehminuten erreichbar.
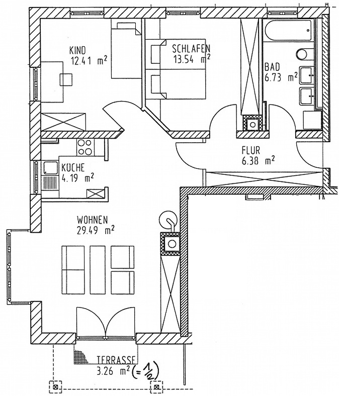
Die Wohnung liegt im Erdgeschoß und verfügt über ein großes, helles Wohnzimmer mit Wintergarten und Anschlußmöglichkeit für einen Holzofen. Die Küche verfügt über eine platzsparende Schiebetüre und bietet Platz für zwei Zeilen.
Das Kinderzimmer ist über zwei Fenster gut belichtet und verfügt über großzügige Stellflächen. ImS chlafzimmer findet auch ein größerer Schrank Platz.
Auch im Flur gibt es großzügige Stellflächen.
Das Bad hat ein Fenster und ist mit Badewanne, WC, zwei Waschbecken, Handtuchtrockner und Waschmaschinenanschluß ausgestattet.
Die Wärmeverteilung erfolgt über eine Fußbodenheizung, in Schlaf- und Kinderzimmer über Heizkörper.
Die überdachte Terrasse ist nach Süd-Westen ausgerichtet.
Der ca. 140 m² große, eingewachsene Garten verfügt über einen zusätzlichen Eingang von außen und ein Gartenhäuschen als Abstellraum.
Im Keller gibt es einen Trockenraum sowie einen Abstellraum für Fahrräder.
Zur Wohnung gehört ein großes Kellerabteil. Auf Wunsch können ein Tiefgaragen-Stellplatz sowie ein zusätzlicher KFZ-Stellplatz dazu erworben werden.
Kaufpreis Wohnung: EUR 569.000,-
auf Wunsch Tiefgaragenstellpl. + Stellplatz: EUR 29.000,-
- Holzofenanschluß
- Fußbodenheizung bzw- Heizkörper
- Wintergarten
- Bad mit Fenster
- ruhige, sonnige Wohnlage
Energieausweis: Verbrauchsausweis vom 07.11.2017
Endenergieverbrauch: 69 kWh/(m²*a)
Energieeffizienzklasse: B
Baujahr Gebäude: 2003; wesentlicher Energieträger: Erdgas H
Ansprechpartner
Telefax: +49 8041 788018
info@neunerimmobilien.de
Energieausweis (Verbrauchsausweis)
69 kWh / (m²*a) Energieverbrauchskennwert
69 kWh / (m²*a) Energieverbrauchskennwert
69 kWh / (m²*a) Energieverbrauchskennwert
Weitere Informationen
| Wesentlicher Energieträger | Gas |
| Energieausweis Ausstelldatum | 2017-11-07 |
| Energieausweis gültig bis | 06.11.2027 |
| Energieausweis Jahrgang | ab dem 1.5.2014 |
| Energieverbrauch für Warmwasser | enthalten |
| Energieausweis Werteklasse | B |
| Energieausweis Baujahr | 2003 |
| Energieausweis Gebäudeart | Wohngebäude |
| Heizung | Zentralheizung |
| Befeuerung | Gas |
Ich bin damit einverstanden, dass mir Karten von Google angezeigt werden. Es gelten die Datenschutzbedingungen von Google (https://policies.google.com/privacy).
Ich bin einverstanden