Außergewöhnliche 4-Zimmer-Maisonette-Wohnung; Anfragen bitte nur per email!
Objektart
Adresse
Objektdaten
Ausstattung
Details
Die hochwertig ausgestattete Wohnung befindet sich in ruhiger, naturnaher Lage im 1. Obergeschoß und Dachgeschoß eines neueren Wohnhauses. Zur Ortsmitte bzw. zum Bahnhof sind es nur wenige Gehminuten.
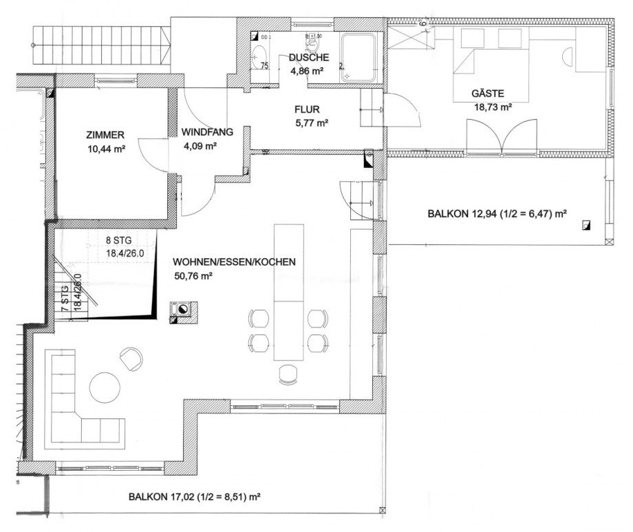
Die Wohnung hat über eine Außentreppe einen eigenen Zugang. Neben dem Eingangsbereich befindet sich ein Zimmer, das sich gut als Büro eignet. Der großzügige Wohn- und Eßbereich schließt direkt an die offene Küche an. Die Einbauküche bietet viel Stauraum und große Arbeitsflächen. Der zentral eingebaute Holzofen spendet gemütliche Wärme. Zur Südseite gibt es einen großen Balkon mit viel Stellfläche.
Der Gästebereich besteht aus einem großen Zimmer mit offenem Dachstuhl, vorgelagertem Flur sowie einem Bad mit Dusche, WC, Waschbecken und Handtuchtrockner. Davor befindet sich ein weiterer Balkon, der auch von der Küche aus zugänglich ist.
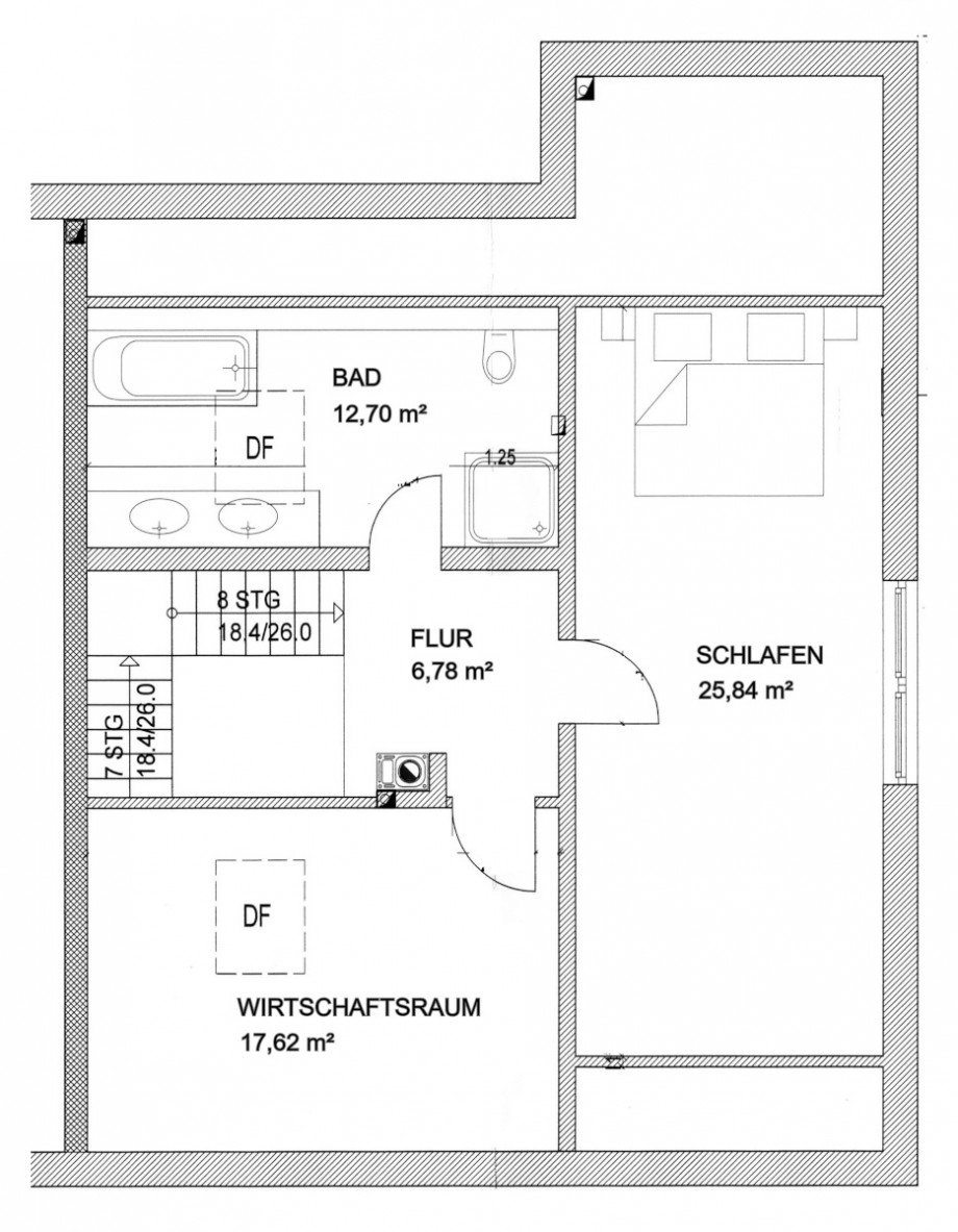
Über die offene Treppe gelangen Sie ins Dachgeschoß. Das große Schlafzimmer verfügt über viel Stellfläche und verwöhnt mit einem schönen Ausblick. Das geräumige Bad ist mit Badewanne, Dusche, Einbaumöbeln mit Waschtisch, WC und Handtuchtrockner ausgestattet.
Im Hauswirtschaftsraum gibt es großzügige Abstellmöglichkeiten und einen Anschluß für die Waschmaschine.
Ein Grillplatz steht zur Mitbenutzung bereit.
Zur Wohnung gehören zwei KFZ-Stellplätze.
Kaltmiete Wohnung EUR 2.250,- + 2 KFZ-Stellplätze à EUR 20,- = Gesamt-Kaltmiete EUR 2.290,-
Die Mindest-Mietdauer beträgt 2 Jahre.
Bitte beachten Sie, daß die Tierhaltung nicht gewünscht ist.
Mit folgenden freiwilligen Angaben erleichtern Sie uns die Bearbeitung Ihrer Anfrage:
- Personenanzahl (Anzahl Erwachsene, Anzahl Kinder, Alter der Kinder)
- derzeitiger Wohnort
- ausgeübter Beruf/beim derzeitigen Arbeitgeber beschäftigt seit...
Nachdem die Besichtigungen parallel laufen kann es leider auch dazu kommen, dass Objekte bereits nicht mehr aktuell sind, obwohl wir Ihre Anfrage noch nicht beantwortet haben. Aufgrund der hohen Anfragenanzahl bitten wir um Verständnis, dass wir Sie hierüber nicht gesondert informieren können. Wir sind bemüht, Ihre Anfragen in der Reihenfolge des Eingangs zu bearbeiten (vollständige Angaben vorausgesetzt).
Achtung: Möchten Sie über neue Angebote sofort informiert werden? Tragen Sie sich kostenlos und unverbindlich in unseren email-Verteiler ein. Diesen finden Sie unter: www.neunerimmobilien.de/E-Mail-Service.htm
- Parkettböden
- Einbauküche
- Kaminofen
- Gästebereich mit 2. Bad
- Nähe Bahnhof und Ortszentrum
Energieausweis: Bedarfsausweis vom 25.03.2026
Endenergiebedarf: 107,0 kWh/(m²·a), Warmwasserbereitung enthalten
Energieeffizienzklasse: D
Baujahr Gebäude: 2016, wesentlicher Energieträger: Holzhackschnitzel
Ansprechpartner
Telefax: +49 8041 788018
info@neunerimmobilien.de
Energieausweis (Bedarfsausweis)
107 kWh / (m²*a) Endenergiebedarf
107 kWh / (m²*a) Endenergiebedarf
107 kWh / (m²*a) Endenergiebedarf
Weitere Informationen
| Befeuerung | Alternativ |
| Energieausweis Ausstelldatum | 2026-03-25 |
| Energieausweis gültig bis | 24.03.2036 |
| Energieausweis Jahrgang | ab dem 1.5.2014 |
| Energieausweis Werteklasse | D |
| Energieausweis Baujahr | 2016 |
| Energieausweis Gebäudeart | Wohngebäude |
| Heizung | Zentralheizung |
Ich bin damit einverstanden, dass mir Karten von Google angezeigt werden. Es gelten die Datenschutzbedingungen von Google (https://policies.google.com/privacy).
Ich bin einverstanden