Objektart
Adresse
Objektdaten
Informationen
Ausstattung
Details
Die angebotenen Büro-/Praxisräume befinden sich in gut frequentierter Lage von Wackersberg und werden derzeit gerade fertiggestellt. Der Bezug ist voraussichtlich ab ca. 01.07.2026 möglich.
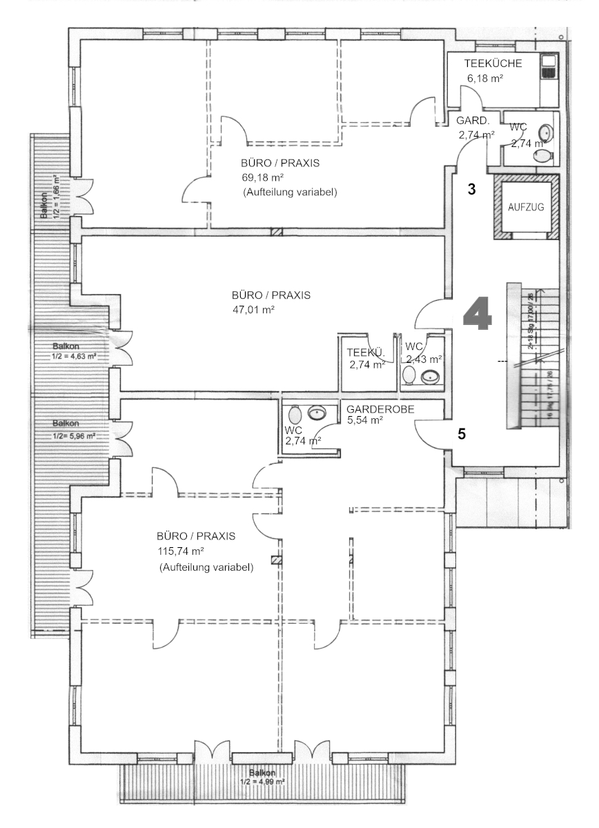
Es gibt 3 verschiedene Einheiten mit ca. 55 m², 81 m² bzw. 125 m² (insgesamt ca. 261 m²) Nutzfläche.
Zusätzlich stehen noch Verkaufs- bzw. Lagerräume im Erdgeschoß (ca. 126 m² Nutzfläche) zur Verfügung.
Die Büro- oder Praxisflächen verfügen über eine großzügige Aufteilung, die bei Bedarf teilweise noch verändert werden kann. Zusätzlich zum WC erhält jede Einheit einen Küchenanschluß. In allen Räumen werden hochwertige Fliesen- oder Vinylböden verlegt. Die Beheizung erfolgt über eine Fußbodenheizung.
Für einen barrierefreien Zugang wird ein Aufzug eingebaut.
Von den Balkonen aus haben Sie einen schönen Blick in die umliegenden Berge.
Für jede Einheit ist ein KFZ-Stellplatz vorgesehen, weitere Stellplätze auf Anfrage.
Die Aufteilung wurde teilweise anders ausgeführt, als im Plan dargestellt. An einigen Stellen können hier noch Ihre Wünsche berücksichtigt werden.
OG West (4): ca. 55,24 m² Nutzfl., Kaltmiete EUR 550,- + MwSt., Nebenkostenvorauszahl. EUR 85,-
KFZ-Stellplatz: EUR 20,- + MwSt.
Weitere Flächen im Haus:
OG Nordwest (3): ca. 81,21 m² Nutzfl., Kaltmiete EUR 795,- + MwSt., Nebenkostenvorauszahl. EUR 120,-
OG Süd (5): ca. 125,29 m² Nutzfl., Kaltmiete EUR 1.250,- + MwSt., Nebenkostenvorauszahl. EUR 180,-
EG (1): ca. 122,89 m² Nutzfl., Kaltmiete EUR 1.190,- + MwSt., Nebenkostenvorauszahl. EUR 180,-
- Aufzug
- WC und Teeküche
- Fliesen oder Vinylböden
- Fußbodenheizung
- gut sichtbare Lage
- schöner Ausblick
- Bahnhof ca. 2 km
Energieausweis: Bedarfsausweis (wird gemäß § 87 GEG derzeit erstellt)
Ansprechpartner
Telefax: +49 8041 788018
info@neunerimmobilien.de
Ich bin damit einverstanden, dass mir Karten von Google angezeigt werden. Es gelten die Datenschutzbedingungen von Google (https://policies.google.com/privacy).
Ich bin einverstanden