Objektart
Adresse
Objektdaten
Informationen
Ausstattung
Details
Die angebotenen Gewerberäume befinden sich in gut frequentierter Lage von Wackersberg und werden derzeit gerade fertiggestellt. Der Bezug ist voraussichtlich ab ca. 01.07.2026 möglich.
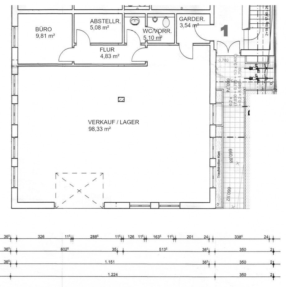
Die Verkaufs- bzw. Lagerräume im Erdgeschoß verfügen zusätzlich zum Eingang über ein großes Sektionaltor, wodurch die Fläche direkt befahrbar ist. Neben den gut belichteten Räumen gibt es einen Büro-/Sozialraum sowie ein WC.
Zusätzlich stehen noch 3 verschiedene Büro-/Praxiseinheiten mit ca. 55 m², 81 m² bzw. 125 m² (insgesamt ca. 261 m²) Nutzfläche zur Verfügung.
Für jede Einheit ist ein KFZ-Stellplatz vorgesehen, weitere Stellplätze auf Anfrage.
Die Aufteilung wurde teilweise anders ausgeführt, als im Plan dargestellt. An einigen Stellen können hier noch Ihre Wünsche berücksichtigt werden.
EG (1): ca. 122,89 m² Nutzfl., Kaltmiete EUR 1.190,- + MwSt., Nebenkostenvorauszahl. EUR 180,-
KFZ-Stellplatz: EUR 20,- + MwSt.
Weitere Flächen im Haus:
OG Nordwest (3): ca. 81,21 m² Nutzfl., Kaltmiete EUR 795,- + MwSt., Nebenkostenvorauszahl. EUR 120,-
OG West (4): ca. 55,24 m² Nutzfl., Kaltmiete EUR 550,- + MwSt., Nebenkostenvorauszahl. EUR 85,-
OG Süd (5): ca. 125,29 m² Nutzfl., Kaltmiete EUR 1.250,- + MwSt., Nebenkostenvorauszahl. EUR 180,-
- großes Sektionaltor
- WC und Teeküche
- gut sichtbare Lage
- schöner Ausblick
- Bahnhof ca. 2 km
Energieausweis: Bedarfsausweis (wird gemäß § 87 GEG derzeit erstellt)
Ansprechpartner
Telefax: +49 8041 788018
info@neunerimmobilien.de
Ich bin damit einverstanden, dass mir Karten von Google angezeigt werden. Es gelten die Datenschutzbedingungen von Google (https://policies.google.com/privacy).
Ich bin einverstanden